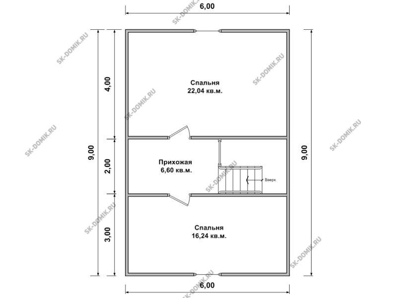
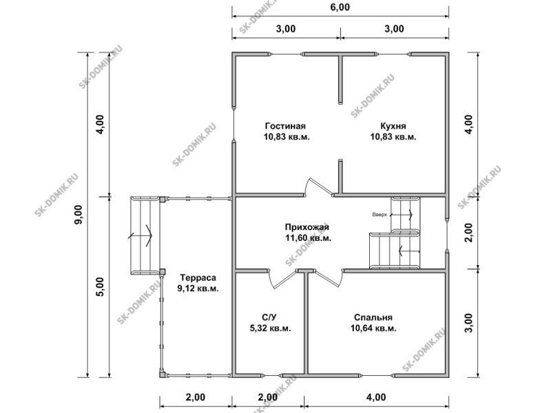
ДК-088
- Площадь:108 кв.м.
- Размер:6x9
- Комнат:4
- Этажей:1.5
- Стены 150 мм
2 856 383 ₽ - Стены 200 мм
3 205 854 ₽ - Стены 250 мм
3 669 437 ₽
Важно! Вы можете воспользоваться кредитом, маткапиталом или льготной ипотекой!
Проект можно изменить под Ваши задачи.
Добавить/убрать стены, переместить окна/двери, изменить форму кровли.
КОМПЛЕКТАЦИЯ И ДОПОЛНЕНИЕ К СТРОИТЕЛЬСТВУ
Обратите внимание! Отдельным цветом мы отметили преимущества нашей комплектации, которая обеспечивает высокую надежность будущего дома. В большинстве строительных компаний эти пункты отсутствуют.
Обвязка (основание)
01Из не профилированного бруса 100х150мм/150х150 мм
Половые лаги
02Не профилированный брус 100х150мм/150х150 мм
Черновой пол
03Обрезная доска 18-20 мм
Каркас
04Собирается из не строганного бруса 40х100/40х150
Потолочные лаги
05Обрезной брусок 40х150 мм с шагом 700 мм
Перегородки
06Каркасно-щитовые. Толщина стены 100 мм
Утепление
07Наружние стены каменной ватой Роквул 100/150 мм. Пол и потолок минеральной ватой КНАУФ 100/150 мм, перегородки минеральной ватой КНАУФ 100 мм
Окна
08Деревянные (с двойным остеклением) 1000х1200, обналиченные, размер и количество согласно проекта
Двери
09Деревянные, филенчатые, обналиченные, размер 850х2050, количество согласно проекту
Чистовой пол
10Шпунтованная половая доска камерной сушки, толщина 36 мм АКЦИЯ
Стропильная конструкция крыши
11Обрезной брусок 40х100 мм с шагом 700 мм, обрешетка выполняется из обрезной доски 18-20 мм
Кровля
12Ондулин (цвет на выбор: красный, коричневый)
Высота потолка
13Высота первого этажа 2,5 м.; второго - 2,3 м
Внутренняя отделка
14Потолок, стены, перегородки обшиваются вагонкой хвойных пород камерной сушки класса "В" толщиной 12,5-16
Лестница
15Деревянная, с перилами, с резными балясинами и стартовыми столбами. Форма и размер в зависимости от проекта
Внешняя отделка
16Фронтоны и стены обшиваются вагонкой хвойных пород камерной сушки класса "В" толщиной 14-16 мм по контр-рейке (вентилируемый фасад). Ширина карниза 300 мм
Сборка дома
17Русскими квалифицированными специалистами входит в стоимость
Доставка
18Рассчитывается за отдельную плату
АКЦИИ ДО КОНЦА МЕСЯЦА

Замена ондулина на металлочерепицу в подарок

Сухая строганная доска в подарок

Окна ПВХ в подарок
Выберите желаемую комплектацию
- стены 150 мм
2 856 383 ₽
- стены 200 мм
3 205 854 ₽
- стены 250 мм
3 669 437 ₽















